Popular Duplex Floorplans for Families and Investors

The right floorplan can make or break the feel and flow of a home. It plays a major role in how functional and comfortable the home will be, especially for duplex’s. Home owners and investors today are looking for layouts that balance privacy while also gaining the best value and use of their space.

In NSW, duplex’s are rapidly becoming a preferred choice for long-term investment and strong capital returns. A key factor in their growing appeal is the level of privacy they offer to both occupants. That’s why we’ve compiled a list of the most popular duplex floor plans for families and investors across NSW.

Popular Duplex Floorplans for Families and Investors

Side-by-Side Duplex Floorplans

One of the most common and effective duplex floorplans is the side-by-side layout. In this design, each dwelling sits next to the other and shares a central wall.

This layout is widely used by experienced duplex builders across Sydney because it offers a strong sense of separation between homes, making it ideal for:

  • Two families living side by side
  • Owners wanting to rent out one dwelling
  • Long-term investment properties

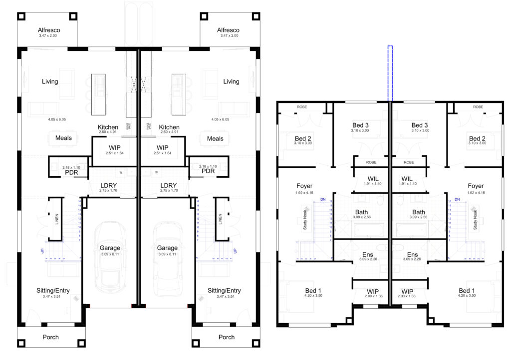
The Harlow 56 is a great example of this design, featuring a mirror-image layout with four spacious bedrooms, two-and-a-half bathrooms, and a single garage in each home. It demonstrates how smart duplex floorplans can deliver both privacy and functionality.

Harlow 56 Duplex Floorplans

Two-Storey Duplex Floorplans

Two-storey designs are among the best duplex floorplans for modern living, particularly on narrower blocks across Sydney and NSW.

By building upwards, these homes maximise space without increasing the building footprint. This allows for:

  • Larger internal living areas
  • Better separation between living and sleeping zones
  • Improved overall functionality

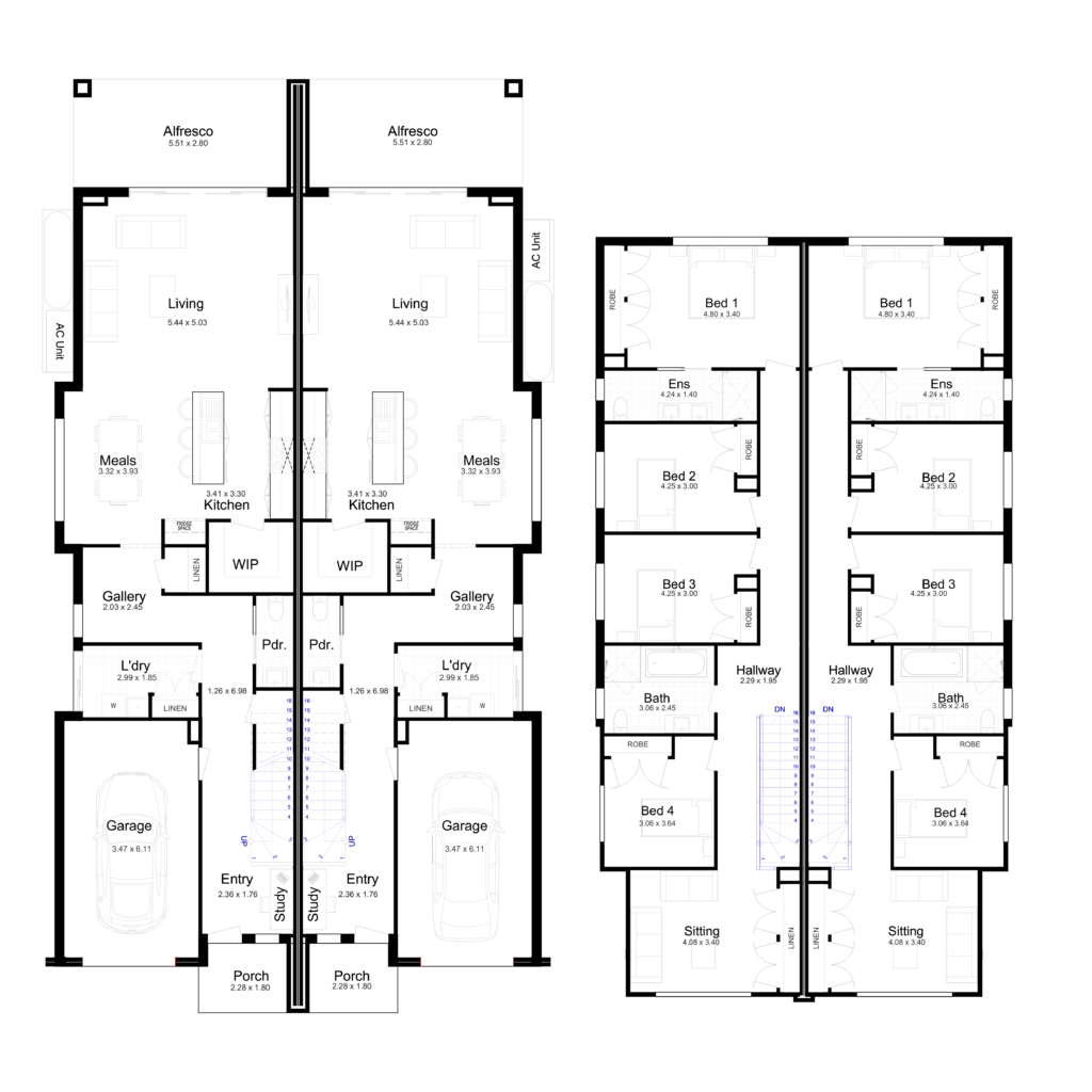
The Indie 52 duplex design showcases how effective this approach can be. With four bedrooms, over three bathrooms, and a single garage in each dwelling, it proves that a compact footprint is never an issue with Better Built Homes duplex designs.

Indie Duplex Floorplan

Most Popular Duplex Floorplan and Design in NSW

The Malachi 44 is one of the most popular duplex floorplans offered by Better Built Homes in NSW. It has been designed with everyday comfort and long-term practicality in mind.

This layout features a seamless flow from front to back, with an open-plan kitchen, spacious living areas, and a generous walk-in pantry to keep everything organised and out of sight.

Like many two storey duplex homes, it follows a functional structure:

  • Living areas on the ground floor
  • Bedrooms positioned upstairs for added privacy

This balance of space, flow, and usability is what makes it a standout choice for both families and investors.

Duplex Floorplan Malachi

Custom Duplex Floorplans and Designs

While pre-designed layouts are a great starting point, not every block or requirements suits a standard design. That’s where custom duplex floorplans and designs come in.

Working with experienced duplex builders in NSW like Better Built Homes, allows you to tailor your design to suit your land, orientation and requirements.

Benefits of Custom Duplex Floorplans
  • Maximise the full potential of your block
  • Design for specific family or investment needs
  • Improve natural light, airflow, and layout efficiency
  • Create a unique home that stands out in the market

 

Duplex Home Builders in NSW: What to Look For

Selecting a duplex home builder is about more than just price. Experience, flexibility, and local knowledge all play a significant role in ensuring a successful outcome.

An experienced duplex builder will understand the complexities of dual occupancy construction, including structural design, soundproofing, and separate utilities. They will also guide you through council approvals and subdivision processes, which can vary across NSW.

Why Build a Duplex with Better Built Homes

At Better Built Homes, our duplex home designs combine functionality with thoughtful architectural detail. Each layout is crafted to ensure both homes feel spacious, private, and tailored to your needs with open-plan living areas, modern kitchens, and separate entrances for true independence.

With over 12 years of experience building homes across Greater Sydney, we understand the unique considerations involved in duplex construction. Whether you’re planning an attached or detached duplex, we’ll guide you through every step from council requirements and site feasibility to design customisation and final handover.

Contact us today to learn about the right duplex floor plan for you and start your home-building journey with confidence.

Visit a Display Home

Virtual 3D Home Tours

Visit one of our display homes in person

Start Building With Us Now

View Home Designs