HOME DESIGN

Harlow 56

Bedrooms 4
Bathrooms 2.5
Garages 1
Living Rooms 3
Rumpus Rooms 1

Introducing the Harlow, an exceptional double-storey duplex design redefining modern living.

Boasting four spacious bedrooms, two and a half luxurious bathrooms, and single garages in each unit, the Harlow offers a harmonious blend of style, functionality, and convenience. Despite its compact footprint, this innovative design maximizes space efficiency, ensuring ample room for both relaxation and entertainment.

The Harlow prioritises storage with meticulous attention to detail, featuring a walk-in pantry and linen closets on both levels, providing residents with unmatched organisational possibilities. Whether you’re preparing a gourmet meal in the sleek kitchen, unwinding in the expansive living areas, or retiring to one of the generously sized bedrooms, every aspect of the Harlow exudes comfort and sophistication.

Ideal for investors seeking lucrative opportunities, the Harlow presents an excellent choice for an investment property. Its versatile layout and modern amenities appeal to a wide range of tenants, guaranteeing high demand and steady returns. Experience the epitome of duplex living with the Harlow, where contemporary design meets practicality, setting a new standard in urban luxury.

If you’re considering your next duplex build, now is the perfect time to explore the Harlow duplex design. Our experienced sales consultants are ready to assist you in bringing your vision to life. They will guide you through every step of the process, from selecting the perfect design to finalizing the construction details. Contact our sales team today to discuss how we can help you create a practical, stylish, and high-quality duplex that meets your needs and exceeds your expectations. Let us help you make the most of your investment with a duplex that truly stands out, call 1300 100 922 now.

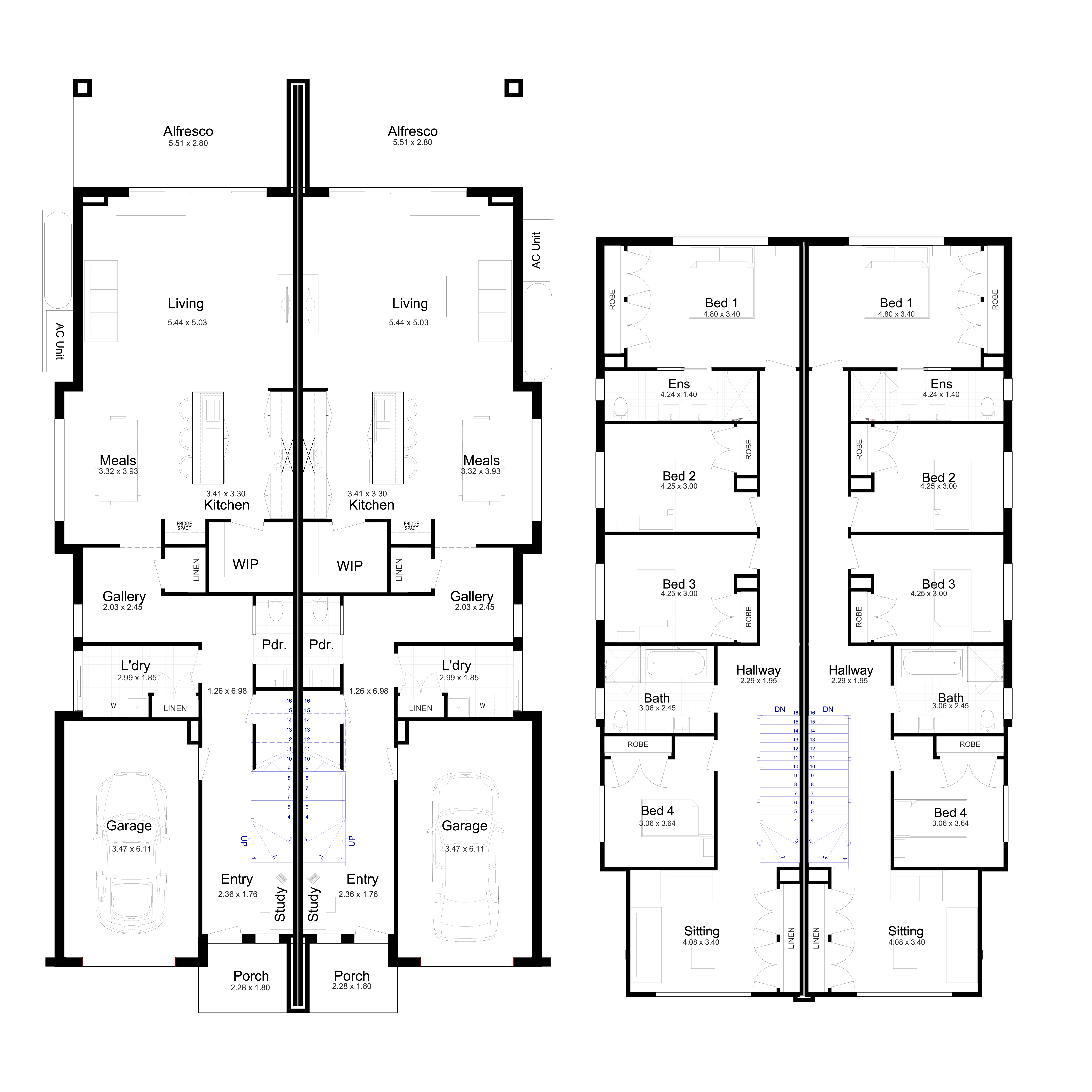
Harlow 56

Floor Plan

Harlow 56 Duplex Floorplans Harlow 56 Duplex Floorplans
Dimensions

Size: 522.22㎡

Width: 13.04m

Depth: 24.14m

Bedrooms 4
Bathrooms 2.5
Garages 1
Living Rooms 3
Rumpus Rooms 1
Harlow 56

Inclusions

Our inclusions have been split into two tiers; Better Living & Better Luxury. Better Luxury is well suited for families/couples whom are looking at building their 2nd or 3rd home – their forever home if you will. Our Better Living is most suited to our first-time home buyers or investors. If you would like to find out more on these inclusions, please head to our inclusions page.

Learn More
Learn More

Start Building With Us Now

View Home Designs