HOME DESIGN

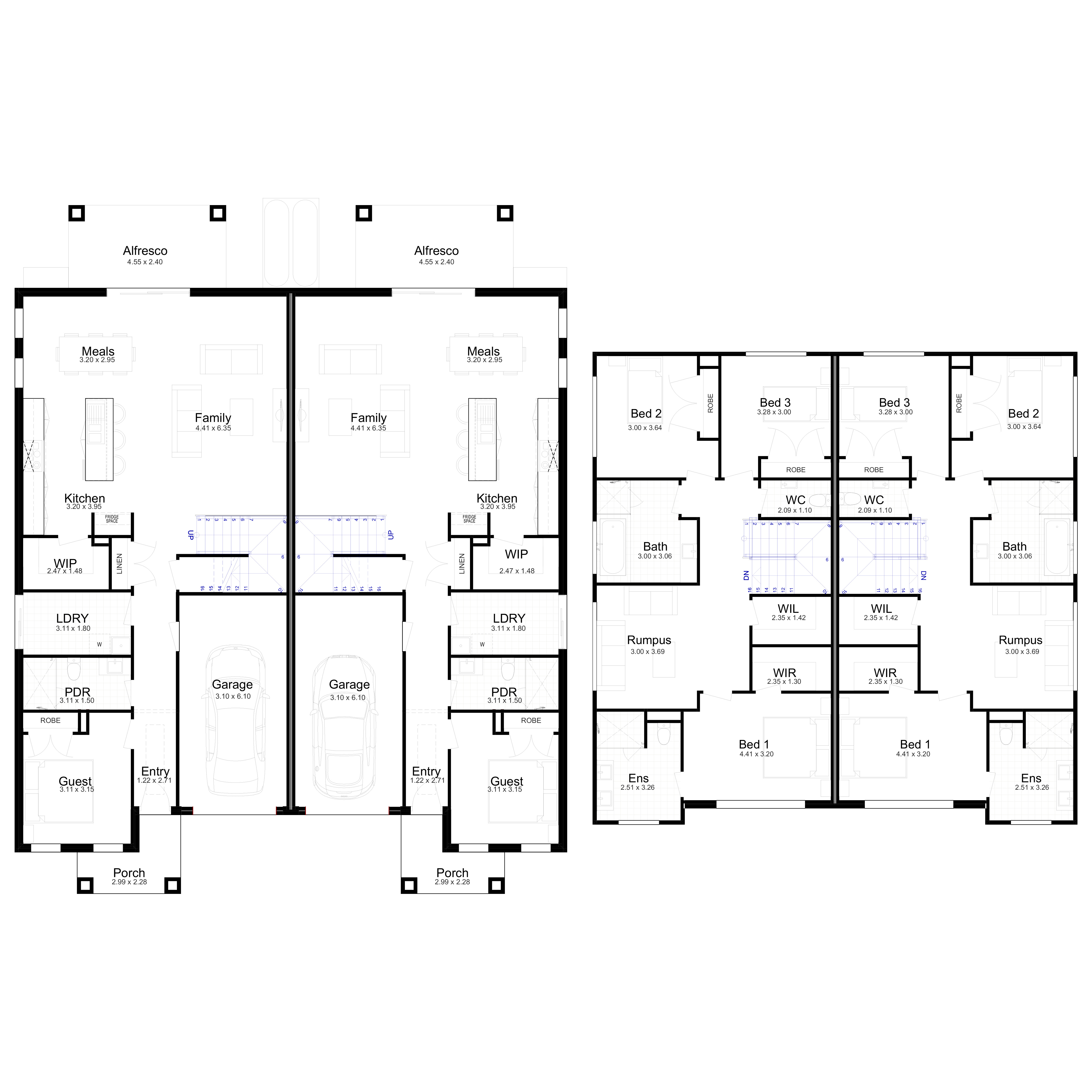
Indie 52

Bedrooms 4
Bathrooms 3.5
Garages 1
Living Rooms 3

The Indie 52 is a generous and well-balanced duplex design that blends comfort, space, and functionality to suit the needs of growing families or savvy investors.

With it’s flexible layout and considered inclusions, this home is built for real life, accommodating everything from weekend entertaining to weekday routines with ease.
Each home features a spacious open-plan living and dining area that forms the heart of the home, offering plenty of room for family connection and everyday living. The modern kitchen is positioned to overlook the entertaining zone, with easy access to the alfresco, perfect for hosting guests or relaxing outdoors all year round.
One of the standout features is the ground floor guest bedroom, ideal for in-laws, visitors, or even as a private space for older kids. Upstairs, a dedicated rumpus area provides a second living space giving everyone a place to unwind or escape the noise.
Practicality is front and centre, with ample storage throughout and a separate water closet located just outside the main bathroom. It’s a small but thoughtful detail that makes shared living easier, especially during those busy mornings.
Whether you’re planning to live in one and lease the other, accommodate extended family, or create a long-term investment, the Indie 52 offers flexibility, comfort, and a design that truly works. Contact us today to start your build journey. Call 1300 100 922 or fill out the contact form on our website, we’re here to help turn your plans into reality.
Indie 52

Floor Plan

Dimensions

Size: 483.52㎡

Width: 15.94m

Depth: 19.91m

Bedrooms 4
Bathrooms 3.5
Garages 1
Living Rooms 3
Indie 52

Inclusions

Our inclusions have been split into two tiers; Better Living & Better Luxury. Better Luxury is well suited for families/couples whom are looking at building their 2nd or 3rd home – their forever home if you will. Our Better Living is most suited to our first-time home buyers or investors. If you would like to find out more on these inclusions, please head to our inclusions page.

Learn More
Learn More

Start Building With Us Now

View Home Designs