HOME DESIGN

Sophia 48

Bedrooms 3
Bathrooms 2.5
Garages 1
Living Rooms 5

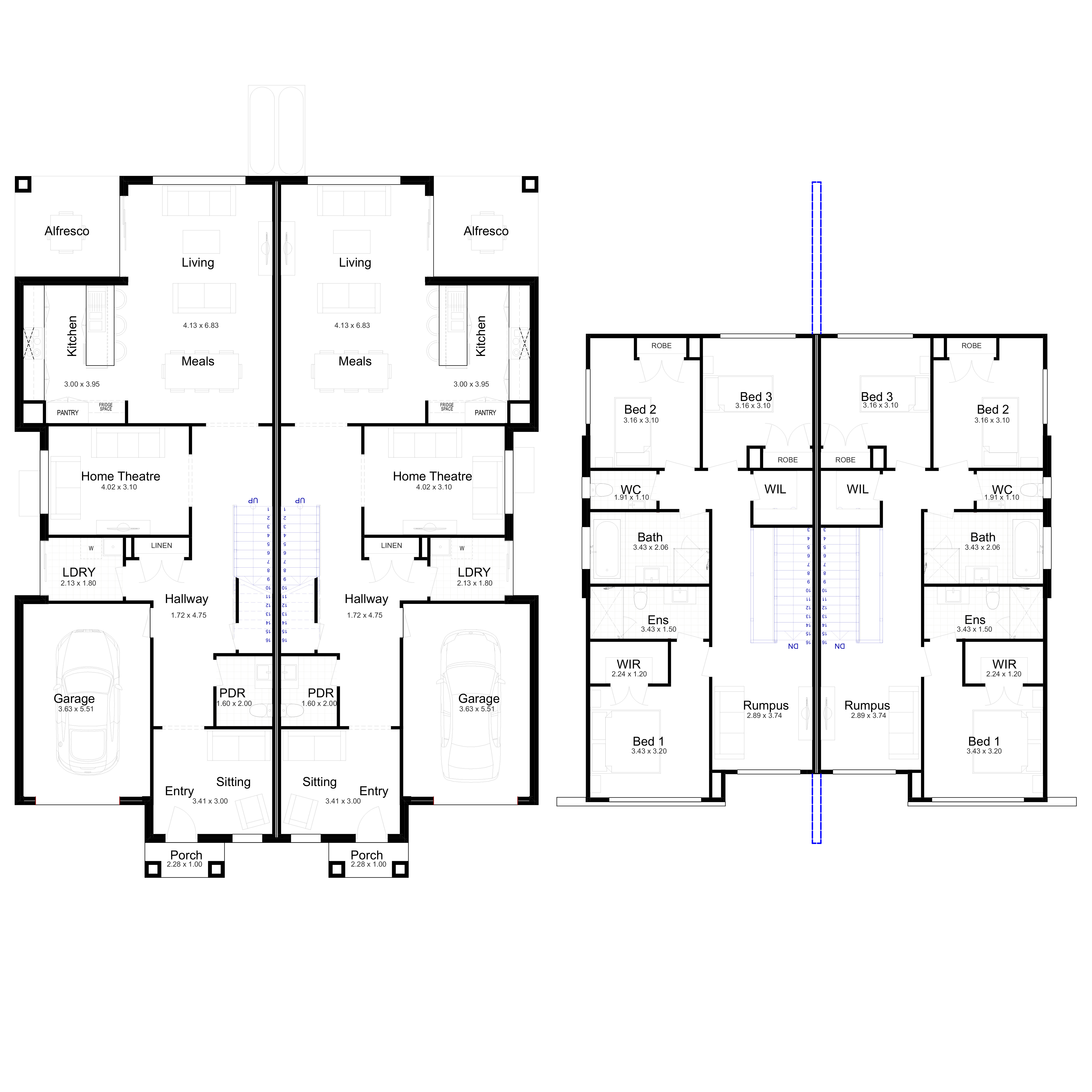
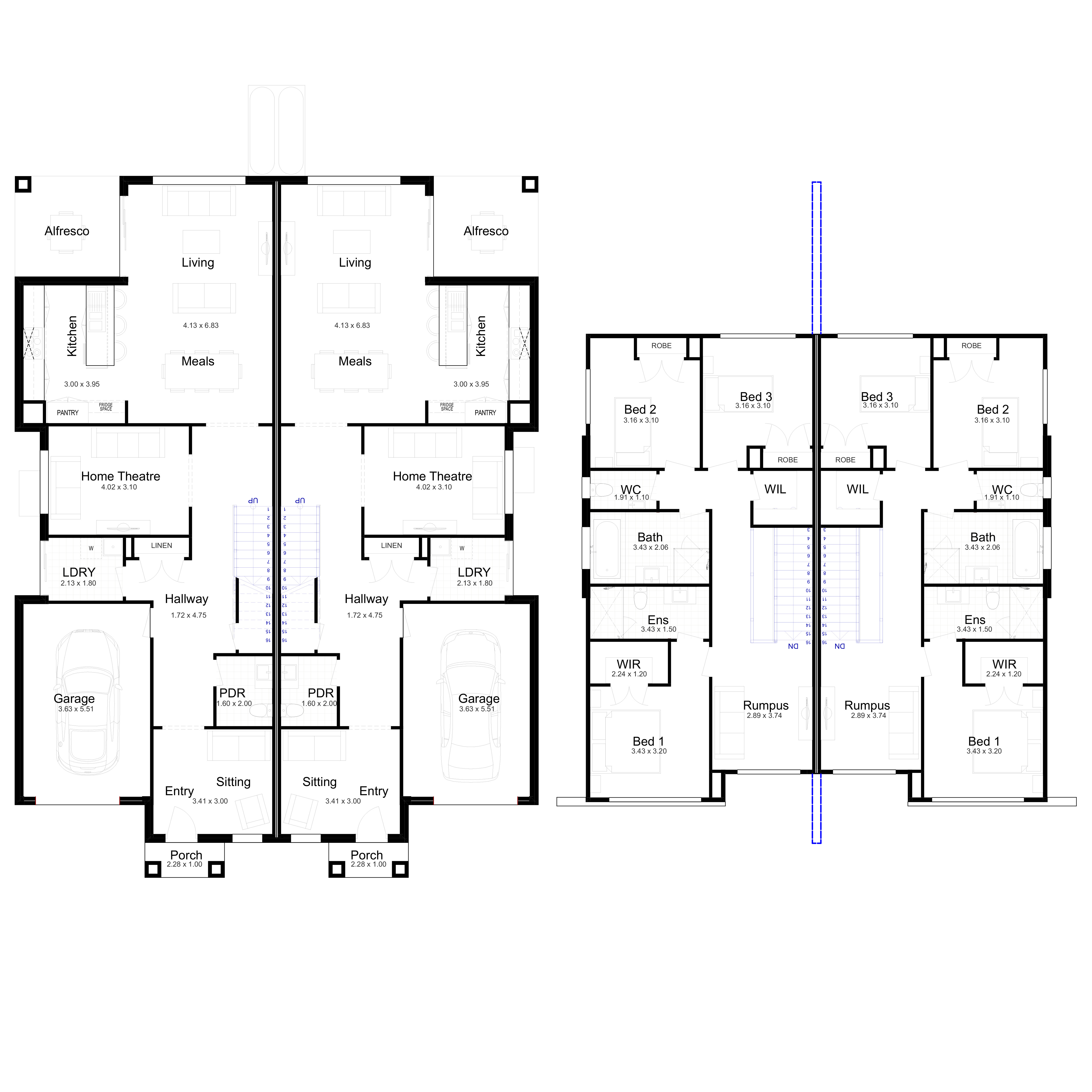
The Sophia 48 is a clever duplex design that offers two thoughtfully planned homes under one roof perfect for families, multi-generational living, or dual-income opportunities.

With its smart layout and focus on functionality, the Sophia 48 brings comfort and convenience to everyday living. Each home features practical, well-zoned spaces designed to suit the needs of modern households. From cosy movie nights in the private home theatre to weekend chores made easier with a direct external sliding door to the laundry, every detail is made to simplify life.
One of the standout features is the separate water closet, a game-changer for busy families with older kids. It allows multiple people to use bathroom spaces at the same time, helping to avoid those daily arguments and keep the peace in the morning rush.
Upstairs, the rumpus room offers a dedicated space for kids to relax, study, or hang out with friends, creating a second living zone that keeps the whole family happy.
Whether you’re building to live in, lease out, or both, the Sophia 48 delivers value and versatility in a streamlined, modern design. Ready to start your build journey? Call us on 1300 100 922 or fill out the contact form on our website, our team is here to help you take the next step.
Sophia 48

Floor Plan

Dimensions

Size: 452.16㎡

Width: 14.98m

Depth: 20.07m

Bedrooms 3
Bathrooms 2.5
Garages 1
Living Rooms 5
Sophia 48

Inclusions

Our inclusions have been split into two tiers; Better Living & Better Luxury. Better Luxury is well suited for families/couples whom are looking at building their 2nd or 3rd home – their forever home if you will. Our Better Living is most suited to our first-time home buyers or investors. If you would like to find out more on these inclusions, please head to our inclusions page.

Learn More
Learn More

Start Building With Us Now

View Home Designs